
PROJEKTE
3 GESCHÄFTE UND 24 WOHNUNGEN IN HAMBURG BERGEDORF
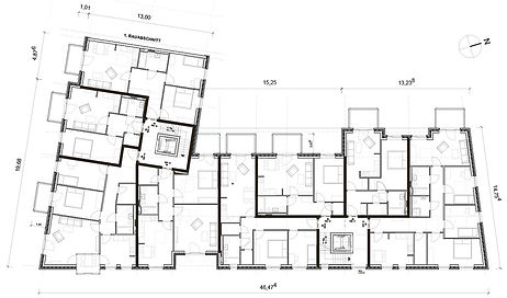
ENTWURF: MIX AUS WOHNUNGEN UND GEWERBEFLÄCHEN IN HAMBURG BERGEDORF
In Hamburg Bergedorf entsteht in einem zweiten Bauabschnitt ein Mehrfamilienhaus mit 24 Wohnungen und 3 Gewerbeeinheiten. Die Wohnungen haben unterschiedliche Größen zwischen 2 und 4 Zimmern. Darunter befinden sich auch 7 Sozialwohnungen. Die Gewerbeeinheiten im Erdgeschoss sind als Ladennutzung vorgesehen.
Das Gebäude wird in massiver Bauweise mit Stahlbeton und Mauerwerk errichtet. Es erhält eine lebendige Klinkerfassade. Es entspricht dem KFW-40-Standard.
ZINSHAUS-KONZEPT
Das Gebäudekonzept folgt unserer Optimierungsphilosophie für vermietete Mehrfamilienhäuser. Dabei haben wir sowohl auf die Mehrfamilienhaus Baukosten geachtet, also auch auf die Langlebigkeit der Materialien, z. B. durch eine wartungsfreie Ziegelfassade.
​
​





